OFERTA SPRZEDAŻY – BUDYNEK KOMERCYJNY / INWESTYCYJNY Słupca, ul. Matejki 9 (róg Browarnej)
Słupca Pokaż na mapie ›
Odświeżone: Piątek, 13 Marzec, 2026 20:37
10 000 000 zł
Szczegóły ogłoszenia
- Kategoria: Biura i lokale / Sprzedaż
- Powierzchnia:2500 m2
- Sprzedaż:Bez pośredników
- Cena: 10 000 000 zł
Opis oferty
OFERTA SPRZEDAŻY – BUDYNEK KOMERCYJNY / INWESTYCYJNYSłupca, ul. Matejki 9 (róg Browarnej)
⸻
? Cena wyjściowa: 4 000 zł/m²
Powierzchnia całkowita: ok. 2 500 m²
➡️ Możliwość zakupu w ratach notarialnych
⸻
? LOKALIZACJA
Nieruchomość położona w centrum Słupcy (powiat słupecki), przy ul. Matejki 9 – róg Browarnej.
W sąsiedztwie:
• Urząd Miasta i Starostwo Powiatowe,
• Dworzec PKS,
• Liceum Ogólnokształcące i Szkoła Podstawowa,
• sklepy, usługi i osiedla mieszkaniowe.
Doskonała lokalizacja – duże natężenie ruchu pieszego i samochodowego, świetna widoczność, szybki dojazd z każdej części miasta.
⸻
?️ PARAMETRY OBIEKTU
• Powierzchnia działki: ok. 1 500 m²
• Rok budowy: ok. 13 lat
• Stan techniczny: bardzo dobry
• Teren częściowo ogrodzony i wykostkowany
• Parking na 20–30 aut
• Podjazd dla osób niepełnosprawnych
• Zezwolenie energetyczne: 80 kW
• Wszystkie media: prąd, woda, kanalizacja, hydraulika, 5 kominów wentylacyjnych
⸻
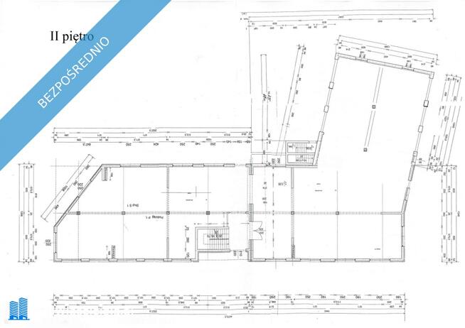
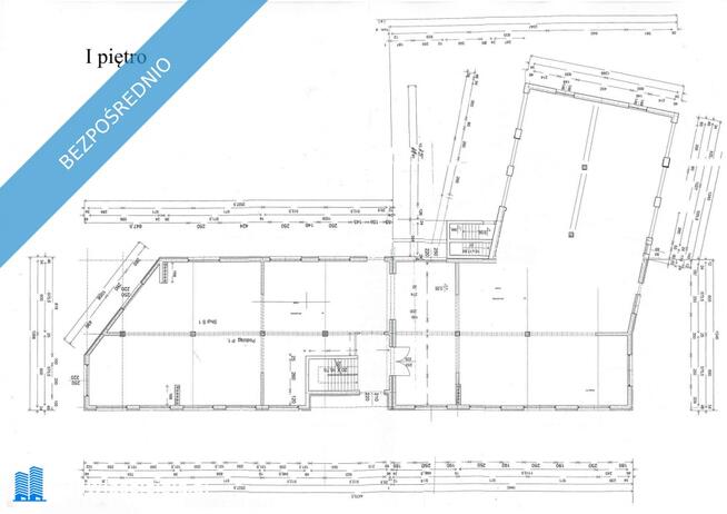
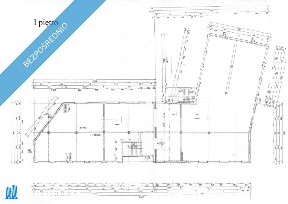
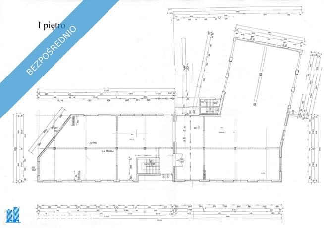
? ROZKŁAD POWIERZCHNI
Piwnica (ok. 500 m²)
Pomieszczenia: 22 m², 35 m², 55 m², 70 m², 250 m² – idealne na magazyny, archiwa lub garaże.
Parter (ok. 475 m²)
Lokale: 110 m², 125 m², 240 m² – doskonałe pod sklepy, apteki, biura lub punkty usługowe.
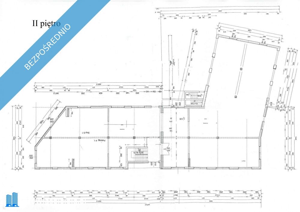
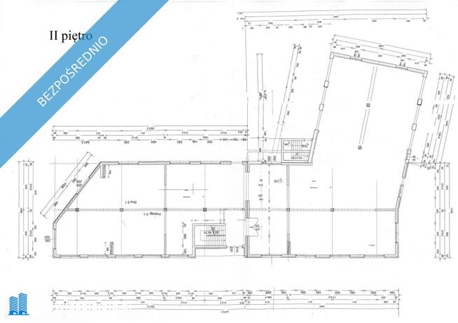
I piętro (ok. 700 m²) – możliwość dowolnego podziału.
II piętro (ok. 700 m²) – możliwość dowolnego podziału.
Magazyn (200 m²) – 6 garaży.
⸻
? PRZEZNACZENIE
Budynek pierwotnie przygotowany pod dom spokojnej starości, ale idealnie sprawdzi się także jako:
✅ budynek mieszkalny wielorodzinny,
✅ pasaż handlowy lub galeria,
✅ szpital, przychodnia, szkoła lub urząd,
✅ biurowiec / siedziba firmy,
✅ salon samochodowy lub sklep meblowy z witrynami,
✅ bank, korporacja, siłownia, centrum fitness lub SPA.
Każdy poziom może być zagospodarowany niezależnie – np. parter handlowy, piętro biurowe, a góra mieszkalna lub hotelowa.
⸻
? DODATKOWE ATUTY
• Budynek w pełni uzbrojony, z kompletną infrastrukturą,
• Możliwość elastycznego podziału i łączenia lokali,
• Lokale wolne od ręki,
• Dojazd z dwóch stron (Matejki i Browarna),
• Duże witryny – idealna ekspozycja handlowa,
• Świetna inwestycja pod rozwój działalności lub adaptację mieszkaniową.
⸻
? WARUNKI SPRZEDAŻY
• Cena: 4 000 zł/m² (do negocjacji)
• Możliwość zakupu z rozliczeniem w ratach notarialnych
• Pełna dokumentacja techniczna i prawna dostępna do wglądu.
? KONTAKT
Kreatywna Przestrzeń – Renata Żabierek
? Nieruchomości – Powiat Słupecki
? 603 - pokaż numer telefonu -
Ogłoszenie dodane do wielu portali nieruchomości przez portal www.odwlasciciela.pl
Sprawdź zainteresowanie tym ogłoszeniem
Wyświetlenia
Data dodania
Ostatnio widziany
Obserwujących
Wysłane zapytania
Odsłony telefonu
Powiadom o podobnych ogłoszeniach
Lokalizacja: Słupca
Kategoria: Nieruchomości » Biura i lokale » Sprzedaż
Cena: od 8500000 zł do 11500000 zł Powierzchnia : od 2125 m2 do 2875 m2
Chcę otrzymywać powiadomienia o nowych ofertach
- Wypromuj ogłoszenie
- Zgłoś naruszenie
- Drukuj ulotkę
- Edytuj/usuń ogłoszenie
- Udostępnij ogłoszenie
- Dodaj na Facebook























